Off-Campus Housing 101
  • Places
  • Landlords
  • Favorites
  • Help
    About Colleges & Universities Scam & Fraud Guidance FAQ Disclaimer
    Terms of Use Privacy Policy
    Contact Support Report a Problem
    Post My Ad Visit EMG.ca
  • Login
  • Back
  • Add To Favorites
  • Inquire Now
  • Call Landlord
Previous Next
15 Kirkwood Ave
House
15 Kirkwood Ave San Francisco, CA

$6,000

  • 3 bed
  • 3 bath
  • 2050 sqft
brought to you by
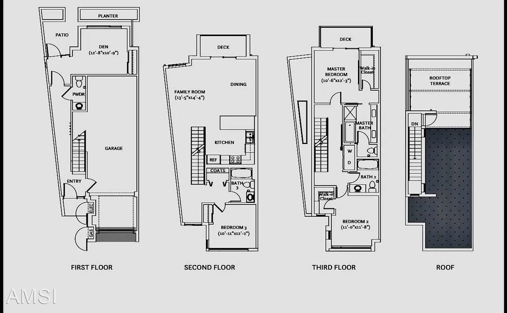
3 Bedroom + Bonus room/3.5 Bathroom Townhome | AMSI | Alexandr Metlinski - Welcome to this Modern/High-Tech Palisades Collection Townhome with stunning views. This townhome has a private garage with two-car parking spaces, lots of extra storage, and a private backyard. The first floor has one room with a separate half-bathroom. The light-filled second level is devoted to an open-plan kitchen, dining area, one bedroom, one bathroom, and a large living room with access to an expansive patio, ideal for study, relaxing, or entertaining. The spacious kitchen has stainless steel Bosh appliances. The open-concept floor plan offers free-flowing usable space across all levels. On the third floor are the two bedrooms, each with its separate bathroom. On the top level, there is a rooftop deck with a sunny microclimate, providing perfect family gatherings and entertaining opportunities. Innes Court Park and Overlook Point are within walking distance. Alexandr Metlinski 415-702-7824 [email protected] AMSI Agent DRE # 02043065 AMSI rents and manages unfurnished residences for all your housing needs. As a rental, leasing, property management, and home-finding solution, our inventory includes apartments, condominiums, single-family homes, and townhouses. Ask us about our corporate and furnished interim housing, relocation services, and real estate for sellers and buyers. AMSI is here to attend to all your housing requirements. https://www.amsires.com
Listing ID:
4246636
Rentlinx ID#:
7456366
Distance to campus:
0 mi
(415) 702-7824

Listings close to this one

1580 Great Highway 1
1580 Great Highway 1 San Francisco, CA
$4,100
Condo
  • 2 Bed
  • 2 Bath
  • 1024-Sqft
  • Ad# 4364731
1366 48th Ave - A
1366 48th Ave - A San Francisco, CA
$1,625
House
  • Studio
  • 1 Bath
  • 528-Sqft
  • Ad# 4264600
1366 48th Ave - B
1366 48th Ave - B San Francisco, CA
$1,550
House
  • Studio
  • 1 Bath
  • 528-Sqft
  • Ad# 4294340
1201 46th Avenue
1201 46th Avenue San Francisco, CA
$2,645
House
  • 1 Bed
  • 1 Bath
  • Ad# 3686067
Powered by Off-Campus Housing 101
Favorites
Places Roommates